پروژه ترسانه Tersane Istanbul
پروژه ترسانه Tersane İstanbul پروژه ای منحصر به فرد توسط هولدینگ بزرگ ریکسوس RIXOS که هتل های آن در ترکیه و در سطح جهان معروف است در قسمت اروپایی شهر استانبول در حال احداث می باشد. این پروژه در یکی از مناطق مرکزی و تاریخی استانبول یعنی بیوغلو در منطقه گلدن هورن (Golden Horn) واقع شده است. بیوغلو و گلدن هورن به دلیل موقعیت استراتژیک و نزدیکی به مناطق تجاری و توریستی استانبول و داشتن آثار تاریخی و فرهنگی، مکان ایدهآلی برای پروژههای بزرگ توسعه شهری به شمار میآید. پروژه عظیم ترسانه در زمینی به مساحت کلی 242,000 مترمربع و در سه زون (منطقه) به نامهای ZONE 1 , ZONE 3 و ZONE 10 اجرا خواهد شد. زون 1 در این پروژه شامل آپارتمانهای یالی درنقطه صفر دریا می باشد. طراحی آپارتمان های یالی در این زون از یک خوابه تا 4 خوابه و متراژ واحدها از 130 تا 448 متر مربع می باشد. زون 3 در پروژه ترسانه Tersane İstanbul مخصوص آپارتمان های ترسانه و واحدها از یک خوابه تا 5 خوابه موجود می باشند. متراژ واحدها در این زون بین 91 تا 501 مترمربع می باشند. زون 10 نیز شامل آپارتمان های ریکسوس RIXOS و دارای واحد های یک خوابه تا 3 خوابه و متراژ آنها بین 102 تا 557 متر مربع می باشند. در همه این زون ها انواع آپارتمانهای فلت، دوبلکس، پنت هاوس، باغچه دار و تراس دار وجود خواهند داشت. پروژه ترسانه Tersane İstanbul مجموعا دارای 3 هتل 5 ستاره با 1100 اتاق، 660 واحد مسکونی، 2 اسکله با ظرفیت پهلوگیری 70 قایق تفریحی و 3 عدد موزه و فرهنگسرا میباشد. طراحی بیرونی این پروژه به شکل ساختمان های کم ارتفاع و مطابق با بافت تاریخی منطقه با نمای چوب و سنگ میباشد. پروژه ترسانه بیوغلو به عنوان یکی از پروژههای بزرگ و مهم شهری به دنبال بهبود زیرساختها، افزایش کیفیت زندگی شهروندان و تقویت جاذبههای گردشگری و فرهنگی در این منطقه است. هدف اصلی این پروژه ایجاد یک مرکز چند منظوره و ترکیبی از امکانات و واحدهای مسکونی، تجاری، فرهنگی و تفریحی میباشد. از دیگر اهداف پروژه ترسانه Tersane İstanbul بهبود زیرساختها شامل بازسازی و بهسازی راهها، توسعه فضای سبز و ایجاد پارکها، تقویت بخش گردشگری، بازسازی و حفظ بناهای تاریخی، برگزاری برنامهها و جشنوارههای فرهنگی، هنری و آموزشی در مجموعه، بهبود شرایط زندگی، توسعه خدمات بهداشتی و آموزشی و ایجاد مسکنهای مدرن و مقرون به صرفه می باشد.


امکانات پروژه ترسانه Tersane Istanbul
پروژه ترسانه Tersane İstanbul یکی از مهمترین و جامعترین پروژههای توسعه شهری در ترکیه است که با هدف احیای یکی از مناطق تاریخی و تبدیل آن به یک مرکز مدرن و چندمنظوره طراحی شده است. پروژه ترسانه Tersane İstanbul با توجه به موقعیت مکانی، امکانات متنوع و تاثیرات مثبت اقتصادی و اجتماعی، به یکی از نمادهای توسعه و پیشرفت در استانبول تبدیل شده است. پروژه ترسانه Tersane İstanbul شامل مجموعهای از ساختمانها و فضاهای مختلف است که هر کدام برای هدف خاصی طراحی شدهاند: فضاهای تجاری و اداری، شامل فروشگاههای برندهای معروف – انواع دفاتر کار – مراکز خرید – مراکز فرهنگی و هنری، شامل موزهها، گالریهای هنری و فضاهای نمایشگاهی برای برگزاری رویدادهای فرهنگی و هنری – رستورانها و کافهها، شامل انواع رستوران و کافههای مجلل با مناظر دیدنی از گلدن هورن – واحدهای مسکونی، شامل آپارتمانهای لوکس و مدرن با تمامی امکانات رفاهی – فضاهای تفریحی و سبز، شامل پارکها، پیادهروها و فضاهای باز برای فعالیتهای تفریحی و ورزشی – هتلهای لوکس، شامل تعدادی هتل با امکانات رفاهی و خدمات برتر برای مسافران و گردشگران. پروژه ترسانه Tersane İstanbul استانبول نقش مهمی در رونق اقتصادی و بهبود وضعیت اجتماعی منطقه دارد. پروژه ترسانه Tersane İstanbul با ایجاد فرصتهای شغلی جدید و جذب سرمایهگذاران داخلی و خارجی، به رشد اقتصادی منطقه کمک میکند. همچنین با بهبود زیرساختهای شهری و ایجاد فضاهای فرهنگی و تفریحی، کیفیت زندگی ساکنان و بازدیدکنندگان را بهبود میبخشد. از دیگر امکانات فراوان پروژه لوکس ترسانه Tersane İstanbul می توان به استخر سرپوشیده، استخر سرباز، سالن تناسب اندام، اسپا، سونا، جاده سلامت، زمین بازی کودکان، موزه، سالن برگزاری نمایشگاه و مد، هتل، مارکت، انواع فروشگاه، مرکز خرید، انواع رستوران و کافه، بار، فرهنگسرا، سینما، ایستگاه شارژ خودروهای برقی، اسکله، دید به دریا، مقاوم در برابر زلزله، نگهبانی و تاسیسات 24 ساعته، سیستم مانیتورینگ، پارکینگ سرپوشیده، پارکینگ مهمان و… اشاره کرد.
امکانات رفاهی پروژه ترسانه Tersane Istanbul
پارکینگ سرپوشیده
سالن تناسب اندام
مرکز خرید
ایستگاه شارژ خودروهای برقی
نگهبانی 24ساعته
دید به دریا
استخر سرپوشیده
پارکینگ میهمان
سیستم مانیتورینگ
استخر روباز
سونا و اسپا
خدمات تاسیسات 24ساعته
کافه و بار
موزه و فرهنگسرا
اسکله
مقاوم در برابر زلزله
جاده سلامت
مارکت
سینما
زمین بازی کودکان
رستوران
انواغ فروشگاه
هتل
سالن برگزاری نمایشگاه و مد
ویدئوی معرفی پروژه ترسانه Tersane Istanbul
در صورتی که به صورت آنلاین قادر به تماشای این ویدئو نیستید، مخصوصا بازدیدکنندگانی که با تلفن همراه وارد سایت شده اند، می توانید با کلیک روی دکمه زیر، ویدئو را دانلود کرده و به صورت آفلاین با یکی از پلیرهای قدرتمند مانند Km player آن را تماشا نمائید.
گالری تصاویر پروژه ترسانه Tersane Istanbul
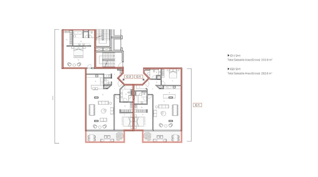
پلن (نقشه) واحدهای پروژه ترسانه Tersane Istanbul
برای دیدن حالت زوم نقشه ها، روی تصویر هر نقشه، کلیک نمایید
جهت دانلود کامل پلن های پروژه ترسانه Tersane Istanbul روی دکمه دانلود زیر کلیک نمایید
برای کسب اطلاعات بیشتر و همچنین برای هماهنگی جهت بازدید از پروژه ها، می توانید با شماره تماس هایی که در پایین همین صفحه قرار دارند، با مشاورین شرکت پرگاس تماس بگیرید. برای ارسال پیام نیز می توانید از طریق فرم زیر، پیام خود را به بخش روابط عمومی شرکت پرگاس ارسال نمایید.
قابل توجه متقاضیان محترم خرید ملک
شرکت پرگاس برای آن دسته از متقاضیان محترم خرید ملک که به دنبال املاکی با مشخصات دلخواه خود هستند، جهت صرفه جویی در زمان و خریدی سریعتر و هماهنگ با سلیقه شان، روش ارتباطی (فرم ارزشیابی) را در نظر گرفته است. متقاضیان محترم خرید ملک می توانند با پر کردن فرم ارزشیابی زیر و ارسال آن، کارشناسان شرکت پرگاس را در ارائه خدماتی بهتر، سریعتر و دقیقتر یاری رسانند.























































































